How To Calculate The Amount Of Hardie Plank Siding
Things Needed
-
Paper
-
Pencil
-
Calculator
-
Tape measure
Hardie Plank siding is a fiber cement-based siding product produced by the James Hardie Corp. Built from water, wood pulp, Portland cement and fly ash, fiber-cement siding provides the durability of masonry work while mimicking the look of wood and other materials. Before purchasing the siding you will need to determine the square footage of the outside of your home, minus the doors and windows that will not be covered. Dividing your home into measurable sections and adding them together is an easy way to get the information you need without having to brush up on your algebra.
Step 1
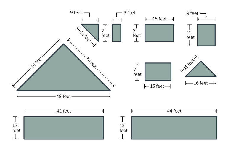
Sketch each of the exterior walls of your home on a sheet of paper. Scale is not important, but capture the basic shape. Divide each sketch into sections based on their shape to make them easier to measure. For example, a rectangular wall with a sloped roof easily becomes a rectangle and a triangle.
Step 2
Measure your home using the shapes on your sketches as guides. For the rectangle and triangle example in Step 1, you would measure the length of all three sides of the triangle, then transfer these dimensions to your sketches. You would then measure the height and width of the rectangle and transfer these dimensions as well. When you are done, you should have a sketch of each of your exterior walls, including dimensions for each component.
Step 3
Calculate the area of each section. To determine the area of a rectangle or square, multiply the length times the width. To find the area of a triangle, multiply the height of the triangle by the length of the longest side, then divide by two. Once you know the area for each section, add all of the areas together to determine the total square footage of your home's exterior.
Step 4
Measure all doors, windows and other exterior areas that will not require siding. Determine the total area for all of these items, then subtract this figure from your final square footage. This figure represents the total square footage of Hardie Plank siding that you will need to purchase.
Step 5
Add about 10 percent to this total square footage before ordering your siding. It is often difficult to match the color and texture of siding in the future, so buy extra. Some material will be lost to cutting during installation, and installation mistakes are possible. Having a few extra planks in storage will be useful for repairs in the event that your siding gets damaged.
Step 6
Determine how much trim you'll need. HardiePlank is usually installed in conjunction with corner beads, window/door trim and soffit trim. Measure the total linear feet for each of these types of trim and indicate these quantities on your order forms.





